自社物件 仲介手数料不要 販売中

山中湖
売旅館

山中湖IC車約10分 木造2階建 宿泊8室 富士山眺望良好

5,000万円

自社物件 - 仲介手数料不要

当物件は株式会社ユアパートナーが保有する自社物件です。仲介業者を通さないため、仲介手数料は一切かかりません。通常、5,000万円の物件であれば約162万円の仲介手数料が発生しますが、当社から直接ご購入いただくことで、この費用を節約いただけます。

Overview 物件概要

種目売旅館
販売価格5,000万円
所在地山梨県南都留郡山中湖村平野
交通 山中湖ICから車で約10分
富士急行線「富士山」駅 13,800m
建物構造木造
階建2階建
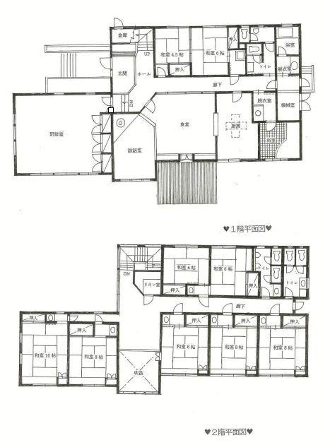
使用部分面積355.49m²
土地面積1,002.40m²(公簿)
築年月1988年7月
客室数8室
土地権利所有権
都市計画非線引区域
用途地域無指定
建ぺい率20%
容積率60%
地目宅地
地勢平坦
駐車場有(無料・3台以上可)
現況
引渡時期相談
取引態様自社物件(株式会社ユアパートナー)

Features 物件の特徴

富士山眺望良好

山中湖畔に位置し、富士山の眺望が良好。宿泊者にとって最高のロケーションです。

宿泊8室

8室の客室を備えた旅館。旅館・民泊・ゲストハウス等、多様な運営が可能です。

仲介手数料不要

当社が保有する自社物件のため仲介手数料は不要。約162万円の費用削減になります。

民泊運営可能

民泊としての運営も可能。インバウンド需要の高い富士五湖エリアで安定した集客が見込めます。

広大な土地

土地面積1,002.40m²の所有権付き。駐車場3台以上確保可能。増築・改築の余地あり。

山中湖畔至近

山中湖畔道路まで約300m。湖畔のレジャー・アクティビティへのアクセス抜群。

Facilities 設備・仕様

バス・トイレ別 シャワールーム トイレ2ヶ所 エアコン2台以上 給湯 収納スペース 駐車場3台以上(無料) 駐輪場(無料) バイク置場(無料)

Location 立地・周辺環境

富士五湖エリア 山中湖畔300m 富士山眺望 駐車場無料

交通アクセス

山中湖ICから 約10分
富士急行線 「富士山」駅 13,800m

周辺施設

小田急山中湖フォレストコテージ 631m
旭日丘郵便局 1,311m
セブンイレブン山中湖旭ケ丘店 1,530m